USSR SHOP »
Магазин »
Цифровые товары »
Дизайн »
3D модели » Проект современного дома 110.17 м. Проект 2025 года
Купить Проект современного дома 110.17 м. Проект 2025 года
Обновлено: 2026-03-24 17:10:14
$ 2.38
0 продаж
Всего продаж: 0
✅ Методы оплаты: 









Описание товара:
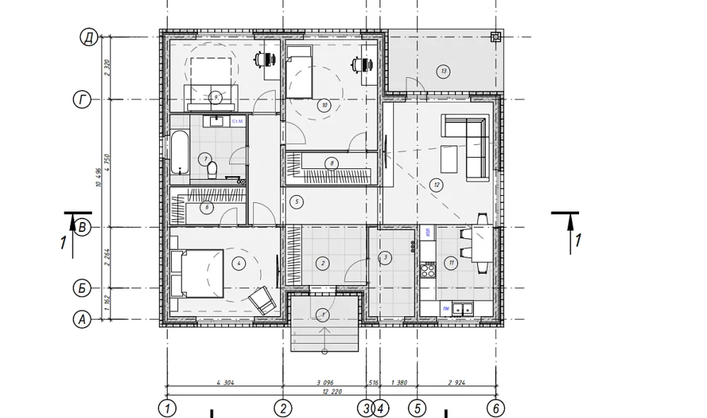
Проект современного дома 110.17 м. Проект 2025 года проект в PDF формате с всеми размерами.
Подробный проект частного одноэтажного дома с небольшой трассой. Дом предназначен для семьи из 4 человек.
Материал стен - керамзитобетонные блоки как наиболее доступный и недорогой строительный материал. Утепление минеральной ватой, фасад из облицовочного кирпичом.
В качестве отопления можно смонтировать теплые полы.
В доме большая кухня - гостиная, 3 спальни,1 санузел.
Подробный проект частного одноэтажного дома с небольшой трассой. Дом предназначен для семьи из 4 человек.
Материал стен - керамзитобетонные блоки как наиболее доступный и недорогой строительный материал. Утепление минеральной ватой, фасад из облицовочного кирпичом.
В качестве отопления можно смонтировать теплые полы.
В доме большая кухня - гостиная, 3 спальни,1 санузел.
Изображения:
Вас могут заинтересовать:
16.12.2019
53 продажи
Механизм для Заточки ножа в Линзу, 3D модель
Купить
$ 0.5
15.06.2010
41 продажа
Рамка для чертежа А1 (горизонтальная)
Купить
$ 0.18
04.05.2023
34 продажи
Best UPGRADE Flyingbear Ghost 6 3D model of a direct ex
Купить
$ 5
29.03.2025
43 продажи
PUBG Exclusive Survivor Pack #1 2025 XBOX
Купить
$ 0.54
03.05.2025
0 продаж
Устав ООО №3 (Стартовый) на 1 и 10 страницах 2025
Купить
$ 0.02
10.04.2013
9 продаж
Лестница 011 (Каталог 3D-Уроки по SolidWorks)
Купить
$ 1
12.02.2025
21 продажа
McAfee LiveSafe 2025 Key
Купить
$ 9
15.01.2025
14 продаж
Autocad Mechanical 2025/24/23/22 WinOS/15.12.2025
Купить
$ 3.77
04.02.2025
3 продажи
Enscape 2014-2025 Win/MacOS лицензия 12 месяцев
Купить
$ 107.99
Более 10 лет
1 продажа
Лицензия Autodesk AutoCAD Architecture 2025 на 1 ПК
Купить
$ 9.99
06.11.2024
6 продаж
Windows Server 2025 RDS Device CAL (50 устройств)
Купить
$ 44.59
05.01.2026
22 продажи
Avast Ultimate Suite 2025 — 1 устройство — 1 год
Купить
$ 2.99
18.04.2023
0 продаж
Фигурка: Хрустяк Ультимативный набор ️ (3D Печать)
Купить
$ 1.79
18.06.2025
4 продажи
eFootball: Leo Messi Edition 2025 XBOX ONE X|S PC
Купить
$ 15
30.11.2025
4 продажи
TESO: 2025 Content Pass + Bonus (Global+РФ) Steam Ключ
Купить
$ 21.5
06.09.2025
2 продажи
MUBI Аккаунт 5 октября 2025 года
Купить
$ 3
03.10.2025
3 продажи
Taurid Twilight Cosmic 2025 Heroes
Купить
$ 1.9
22.04.2025
2 продажи
Elder Scrolls IV Oblivion Remaster Deluxe 2025 на 90 дн
Купить
$ 1.19
24.12.2025
3 продажи
Dying Light: The Beast (2025) PS5 | П2/П3
Купить
$ 14.27
24.01.2026
0 продаж
Пакет персональные данные 2025 политика согласие утечки
Купить
$ 10
04.09.2019
0 продаж
черная собака
Купить
$ 1
17.03.2026
106 продаж
CorelDRAW Graphics Suite 2025+Technic 5 PC Perpetual
Купить
$ 6
03.10.2025
3 продажи
Photax Fluttercat Cosmic 2025 Heroes' Hoard
Купить
$ 1.95
14.05.2025
1 продажа
THE PRECINCT (2025)・STEAM АККАУНТ + ИГРЫ・
Купить
$ 1.29
05.12.2025
0 продаж
База YouTube каналов - Женские 4000 шт (2025 год)
Купить
$ 1.5
04.09.2025
0 продаж
База 250 Телеграм каналов и чатов по Греции (2025 год)
Купить
$ 1
18.04.2023
0 продаж
Фигурка: Хрустяк 11 (3D Печать)
Купить
$ 0.24
24.12.2025
1 продажа
Metal Gear Solid Snake Eater Deluxe 2025 Xbox ️Авто
Купить
$ 5.88
24.12.2025
0 продаж
Frostpunk 2 (2025) PS5 | П2/П3
Купить
$ 10.7
29.12.2025
0 продаж
NCH Copper Point of Sales 2025 Пожизненная гарантия
Купить
$ 9.97
07.12.2020
0 продаж
Блок Автокад факс dwg
Купить
$ 0.2
21.02.2020
0 продаж
Настольный LED светильник Ronin от Wade Logan
Купить
$ 6
05.02.2026
1 продажа
SEA OF THIEVES: 2025 DELUXE EDITION XBOX + PC (WIN) КЛЮ
Купить
$ 59.84
17.03.2026
0 продаж
Destiny 2: Legacy Collection 2025 - КЛЮЧ РФ + СНГ
Купить
$ 43.33
14.12.2018
0 продаж
Микродом на четверых за 3300$
Купить
$ 50
18.02.2020
0 продаж
Телевизионная подставка Lonegan от 17 Stories
Купить
$ 5
24.12.2025
2 продажи
CorelDRAW Technical Suite 2025 Windows – Lifetime Key
Купить
$ 5
03.10.2025
0 продаж
Cosmic Cartographer | Cosmic 2025 Heroes' Hoard
Купить
$ 1.99
29.12.2025
0 продаж
Атлас анатомии человека 2025 Microsoft Store Windows PC
Купить
$ 30.12
Более 10 лет
0 продаж
Soccer Manager 2025 Football iPhone ios AppStore iPad
Купить
$ 1.25
22.03.2026
0 продаж
MX vs ATV Legends - 2025 Deluxe Edition Xbox
Купить
$ 100.48
14.02.2025
0 продаж
⭐ PPA Pickleball Tour 2025 Steam КЛЮЧ GLOBAL
Купить
$ 17
11.03.2026
3 продажи
️The Elder Scrolls Online 2025 Premium Edition XBOX
Купить
$ 31
29.09.2025
1 продажа
⭐ Let's Sing 2025 - German Hits Song Pack DLC EU (witho
Купить
$ 5
23.03.2026
0 продаж
Sea of Thieves 2025 Premium Edition I STEAM•RU АВТО
Купить
$ 19.82
09.03.2026
0 продаж
Uno - Ultimate Edition 2025・STEAM GIFT・RU/KZ/UA/CIS/CN/TR/AR
Купить
$ 21.59