USSR SHOP »
Магазин »
Электронные книги »
Наука и образование »
Чертежи » Проект установки опор ЛЭП
Купить Проект установки опор ЛЭП
Обновлено: 2025-10-23 10:22:42
$ 0.48
0 продаж
Всего продаж: 0
✅ Методы оплаты: 













Описание товара:
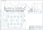
Рабочим проектом предусмотрено строительство фундаментов для опор ЛЭП 110 кВ, подхода ВЛ к компрессорной станции. Чертежи установки и закрепления опор в различных грунтах.
Проект установки опор ВЛ 110 кВ имеет следующие чертежи:
- общие данные;
- ведомость опор и фундаментов;
- указание о материалах металлоконструкций опор;
- указания к маркировочной схеме фундаментов и опорам;
- закрепление железобетонных опор;
- фундаменты под угловые опоры;
- закрепление концевых опор;
- защита опор ВЛ от хода льдов;
- заземляющие устройства ВЛ.
Формат файла: dwg, tif (AutoCAD 2010 не редактируемый)
Примечание: исходные файлы формата *.tif должны, находится в одной папке с файлом проекта *.dwg
Проект установки опор ВЛ 110 кВ имеет следующие чертежи:
- общие данные;
- ведомость опор и фундаментов;
- указание о материалах металлоконструкций опор;
- указания к маркировочной схеме фундаментов и опорам;
- закрепление железобетонных опор;
- фундаменты под угловые опоры;
- закрепление концевых опор;
- защита опор ВЛ от хода льдов;
- заземляющие устройства ВЛ.
Формат файла: dwg, tif (AutoCAD 2010 не редактируемый)
Примечание: исходные файлы формата *.tif должны, находится в одной папке с файлом проекта *.dwg
Изображения:
Вас могут заинтересовать:
30.10.2014
25 продаж
УГО арматура трубопроводная
Купить
$ 0.15
27.05.2016
12 продаж
Чертеж Коробка передач КАМАЗ 65111
Купить
$ 1.91

18.06.2016
6 продаж
Чертеж Тормозной кран автомобиля ЗИЛ-4331
Купить
$ 1.24

06.06.2022
0 продаж
Проект автоматизации резервуара
Купить
$ 2.83

15.10.2021
2 продажи
Проект внешнего электроснабжения школы
Купить
$ 1.26

17.07.2023
0 продаж
Электродвигатель 4АЗМ
Купить
$ 1.55

26.09.2024
0 продаж
Чертеж вала оси электромотора моноколеса Inmotion V8
Купить
$ 15

11.03.2021
0 продаж
Схема электроснабжения камерной печи мощностью 43кВт.
Купить
$ 0.98
23.05.2014
2 продажи
Система для ГБО "Сага - 6"
Купить
$ 3
02.09.2024
2 продажи
Проект входа газопровода высокого давления на КС
Купить
$ 0.48
22.04.2016
2 продажи
Технологическая карта на сварку металлических труб
Купить
$ 0.68

06.02.2017
1 продажа
Сортамент металлопроката для AutoCAD 2012
Купить
$ 0.12
30.07.2025
0 продаж
Чертеж трехкулачкового патрона D250 с пневмоприводом
Купить
$ 3.5

15.08.2024
0 продаж
Кулак шарнира. Чертеж контрольного приспособления
Купить
$ 2.5
20.09.2024
0 продаж
Чертеж приспособления фрезерного многоместного в компас
Купить
$ 4.8

22.09.2024
0 продаж
Чертеж картофелекопалки К-6 в компасе
Купить
$ 4
02.07.2025
0 продаж
Чертеж калибр-пробка 35H7 и деталировка в компасе
Купить
$ 3
21.07.2025
0 продаж
Технологический процесс изготовления детали втулка
Купить
$ 3
05.08.2025
0 продаж
Чертеж редуктор цилиндрический одноступенчатый a=150
Купить
$ 3

24.06.2024
0 продаж
Столик рекламный вращающийся в компасе
Купить
$ 5
30.09.2024
0 продаж
Чертеж и 3д-модель детали валик 0052.20.000.001
Купить
$ 1.8

25.09.2024
0 продаж
Планировка участка механической обработки деталей
Купить
$ 1.5
14.09.2024
0 продаж
Чертеж детали вал червячного колеса в компасе
Купить
$ 1.8
29.07.2025
0 продаж
Чертеж фреза дисковая прорезная D50 в компасе
Купить
$ 1.56
18.07.2025
0 продаж
Чертеж и модель детали опора амортизатора в компас 3D
Купить
$ 1.56
08.08.2025
0 продаж
Чертеж детали звездочка приводная z=25; p=31,75
Купить
$ 1.6
18.06.2024
0 продаж
Чертеж МЧ00.45.00.03 вилка и модель детали в компасе
Купить
$ 2.4
25.07.2025
0 продаж
Чертеж и 3д модель детали Ось в программе компас 3д
Купить
$ 2.16

18.09.2024
0 продаж
Чертеж детали втулка 2549.020.128 в компасе
Купить
$ 1

12.09.2024
0 продаж
Чертеж детали диск в программе компас
Купить
$ 1

19.09.2024
0 продаж
Чертеж детали втулка шпоночная в компасе
Купить
$ 1

19.09.2024
0 продаж
Чертеж детали хомут 0.13 в компасе
Купить
$ 1.2

05.09.2024
0 продаж
Чертеж детали крышка в программе компас
Купить
$ 1

19.07.2024
0 продаж
Рабочий чертеж детали винт с проушиной в компасе
Купить
$ 1

23.07.2024
0 продаж
МЧ00.23.00.07 втулка. Рабочий чертеж детали в компасе
Купить
$ 1
26.07.2024
0 продаж
МЧ00.07.00.03 призма. Рабочий чертеж детали в компасе
Купить
$ 1.2

04.09.2024
0 продаж
Чертеж калибр-скоба гладкий d140,4h8 в компасе
Купить
$ 1

27.08.2024
0 продаж
Чертеж детали фланец в компасе
Купить
$ 1
30.07.2024
0 продаж
01.007 ротор. Рабочий чертеж детали в компасе
Купить
$ 1.2

24.07.2024
0 продаж
МЧ00.07.00.00 призма раздвижная. Сборочный и СП
Купить
$ 1.2
29.08.2024
0 продаж
Схема фрезерования концевой фрезой паза в компасе
Купить
$ 1.2

05.09.2024
0 продаж
Чертеж детали корпус горелки АГГЗМ в компасе
Купить
$ 1.2
14.08.2025
0 продаж
Чертеж детали 18.005 втулка сальника
Купить
$ 1.1
29.07.2025
0 продаж
Схема сборки МЧ00.69.00.00 зажимное приспособление
Купить
$ 1.32
16.09.2025
0 продаж
Чертеж 08.004 гайка-барашек М6
Купить
$ 1.3
13.08.2025
0 продаж
Рабочий чертеж детали "Вал" в компас 3D (d=45)
Купить
$ 1.2
01.09.2025
0 продаж
Чертеж болтового соединения М16 в программе компас
Купить
$ 1

19.10.2018
10 продаж
Чертеж трубогиб гидравлический
Купить
$ 2.93

28.02.2019
151 продажа
Профилегиб
Купить
$ 0.04
05.03.2019
0 продаж
ФУНДАМЕНТ ПОД ГРУЗОВОЙ КРАН/ЧЕРТЁЖ
Купить
$ 1.46