USSR SHOP »
Магазин »
Электронные книги »
Наука и образование »
Дипломы » Ростовский электрометаллургический завод
Купить Ростовский электрометаллургический завод
Описание товара:
11 листов А1, 1 лист А2 + 139 листов А4 пояснительной записки
Лист 0. Архитектурно-строительный: Перспектива
Лист 1. Архитектурно-строительный: Фасад 14-1, Фасад 1-14, Технико-экономические показатели по зданию, Генеральный план, Баланс территории, Экспликация зданий и сооружения, Роза ветров, Условные обозначения
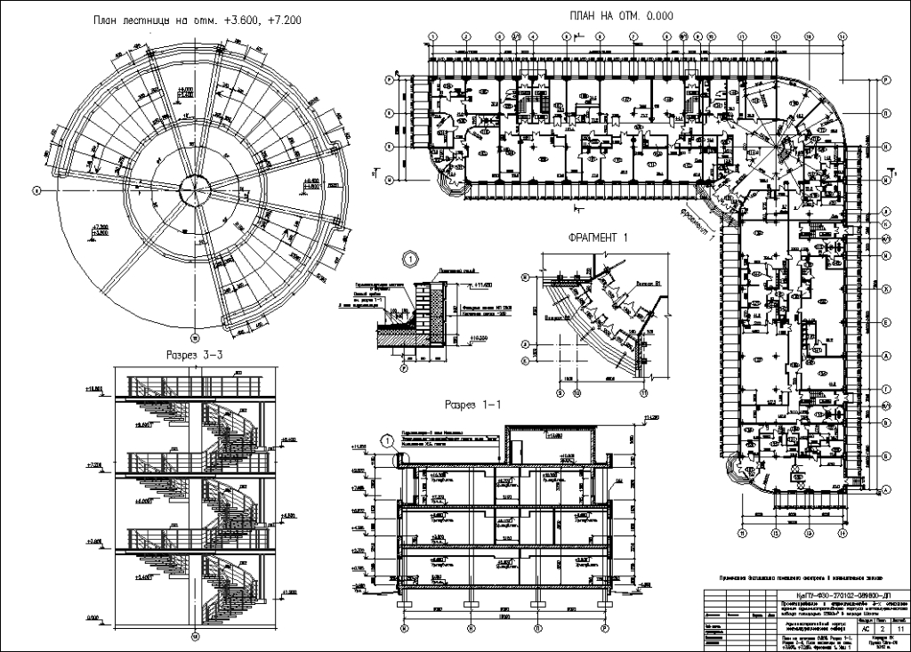
Лист 2. Архитектурно-строительный: План на отметке 0,000, Разрез 1-1, Разрез 3-3, План лестницы на отм. +3.600, +7.200, Фрагмент 1, Узел 1
Лист 3. Архитектурно-строительный: План на отметке +3,600, Разрез 2-2, План кровли, Узлы 2,3
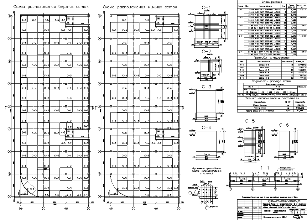
Лист 4. Расчетно - конструктивная часть: Монолитная плита МП-1
Лист 5. Расчетно - конструктивная часть: Фундамент свайный ФС-1
Лист 6. Технологическая часть: Технологическая карта на монтаж вентилируемого фасада
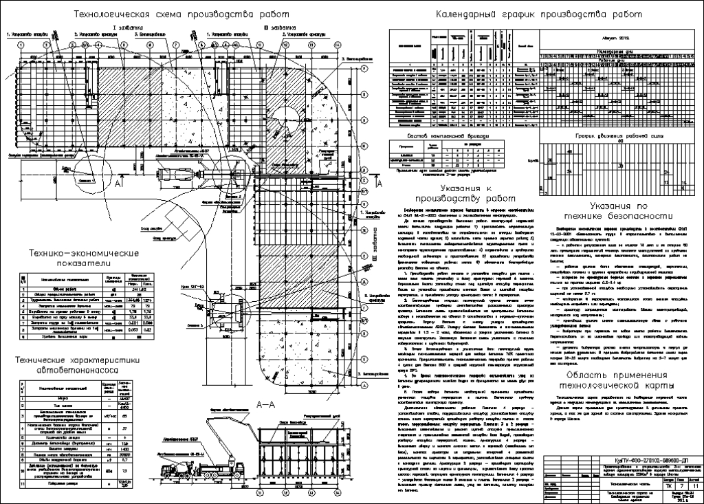
Лист 7. Технологическая часть: Технологическая карта на возведение надземной части здания
Лист 8. Технологическая часть: Технологическая карта на возведение надземной части здания
Лист 9. Организационная часть: Календарный план производства работ, график движения рабочей силы, график движения машин и
механизмов, график завоза и расхода материалов, технико-экономические показатели, условные обозначения
Лист 10. Организационная часть: Строительный генеральный план, условные обозначения, экспликация зданий и сооружений, технико-экономические показатели, разрез 1-1, сечение А-А
Лист 11. Экономическая часть: Основные технико - экономические показатели проекта, Сравнение вариантов гипсокартонных перегородок
Скачать образец: http://pgsfiles.ru/engine/download.php?id=91 [2,44 Mb]
Скачать презентацию: http://pgsfiles.ru/engine/download.php?id=57 [791,3 Kb]
Примечание: Формат файла - RAR архив [8,79 Mb]: Чертежи в формате: DWG - Autodesk AutoCAD + Пояснительная записка в формате: DOCX - Microsoft Office Word
Лист 0. Архитектурно-строительный: Перспектива
Лист 1. Архитектурно-строительный: Фасад 14-1, Фасад 1-14, Технико-экономические показатели по зданию, Генеральный план, Баланс территории, Экспликация зданий и сооружения, Роза ветров, Условные обозначения
Лист 2. Архитектурно-строительный: План на отметке 0,000, Разрез 1-1, Разрез 3-3, План лестницы на отм. +3.600, +7.200, Фрагмент 1, Узел 1
Лист 3. Архитектурно-строительный: План на отметке +3,600, Разрез 2-2, План кровли, Узлы 2,3
Лист 4. Расчетно - конструктивная часть: Монолитная плита МП-1
Лист 5. Расчетно - конструктивная часть: Фундамент свайный ФС-1
Лист 6. Технологическая часть: Технологическая карта на монтаж вентилируемого фасада
Лист 7. Технологическая часть: Технологическая карта на возведение надземной части здания
Лист 8. Технологическая часть: Технологическая карта на возведение надземной части здания
Лист 9. Организационная часть: Календарный план производства работ, график движения рабочей силы, график движения машин и
механизмов, график завоза и расхода материалов, технико-экономические показатели, условные обозначения
Лист 10. Организационная часть: Строительный генеральный план, условные обозначения, экспликация зданий и сооружений, технико-экономические показатели, разрез 1-1, сечение А-А
Лист 11. Экономическая часть: Основные технико - экономические показатели проекта, Сравнение вариантов гипсокартонных перегородок
Скачать образец: http://pgsfiles.ru/engine/download.php?id=91 [2,44 Mb]
Скачать презентацию: http://pgsfiles.ru/engine/download.php?id=57 [791,3 Kb]
Примечание: Формат файла - RAR архив [8,79 Mb]: Чертежи в формате: DWG - Autodesk AutoCAD + Пояснительная записка в формате: DOCX - Microsoft Office Word










