USSR SHOP »
Магазин » Чертежи мебели. Кухонная тумба Т80П1 (ш. 80 см, полка)
Купить Чертежи мебели. Кухонная тумба Т80П1 (ш. 80 см, полка)
Обновлено: 2025-10-23 23:11:10

$ 0.98
1 продажа
Всего продаж: 1
✅ Методы оплаты: 









Описание товара:
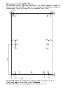
Полный пакет профессионально подготовленных чертежей и спецификаций для самостоятельного изготовления кухонного модуля Т80П1 (Тумба шириной 80 см с полкой). Размеры деталей, кромкование, схемы присадки деталей и фасадов, список фурнитуры, инструкция по сборке и рекомендации по установке. Никаких знаний графических программ не требуется, пакет сделан по технологии скачал - распечатал - сделал.
Серия "Мебель своими руками: Чертежи классических кухонных модулей"
Серия "Мебель своими руками: Чертежи классических кухонных модулей"
Изображения:
Вас могут заинтересовать:
22.02.2020
90 продаж
Чертежи и 3D модель АПЕКС для заточки НОЖЕЙ и НОЖНИЦ
Купить
$ 0.5
21.11.2019
27 продаж
Чертежи тренажера IRONSET
Купить
$ 7
03.07.2010
0 продаж
Чертежи и описание печки на отработанном масле
Купить
$ 10

13.01.2005
15 продаж
136 моделей мебели, предметов интерьера и быта (3D MAX5
Купить
$ 0.22

06.03.2024
3 продажи
Кухонная библиотека 2023 для PRO100 + PRO100 6.4 + KRAY
Купить
$ 29.29
06.03.2024
6 продаж
Кухонная библиотека 2023 для PRO100 + PRO100 6.4 + KRAY
Купить
$ 0
25.09.2025
9 продаж
The Sims 4 Кухонная утварь -комплект /EA/ORIGIN
Купить
$ 7.88

22.02.2010
0 продаж
Чертежи оборудования для производства пенобетона
Купить
$ 10

31.01.2010
5 продаж
Чертежи мебели. Кухонная тумба Т60П1 (ш. 60 см, полка)
Купить
$ 0.98
23.02.2015
0 продаж
Чертежи кресла Decor Dreaming
Купить
$ 3.9

22.02.2010
0 продаж
Чертежи горелки микроплазменного сварочного аппарата
Купить
$ 10
07.10.2025
7 продаж
My Time at Sandrock Набор дальневосточной мебели STEAM
Купить
$ 3.82

02.04.2010
0 продаж
Чертежи планера Monerai
Купить
$ 3.99
03.04.2015
2 продажи
Чертежи: Корпус водяного насоса ЗИЛ 130 и другое...
Купить
$ 8
13.06.2013
1 продажа
Чертежи теплообменника 159 ТКГ-1,6-М1/25-2-1
Купить
$ 5

Более 10 лет
1 продажа
Чертежи дроболейки для литья охотничьей дроби в домашних условиях.
Купить
$ 18

17.09.2007
1 продажа
Набор качественной мебели 2 , для 3ds Max - HI-POLY модели
Купить
$ 0.5

01.02.2010
0 продаж
Чертежи кухонной тумбы Т50П1 (ширина 50 см, полка)
Купить
$ 0.98
22.02.2015
1 продажа
Чертежи теплообменника 800 ТКГ-1,0-М8/20Г-2-1
Купить
$ 10

23.03.2017
0 продаж
Видеокурс «Быстрые деньги в корпусной мебели 3.0»
Купить
$ 0.29

30.05.2014
1 продажа
Чертежи.3D модель Червячного редуктора
Купить
$ 3
09.03.2013
0 продаж
Чертежи.Технологическая наладка.Фрезерная. Деталь-вал.
Купить
$ 3.7

14.04.2018
0 продаж
Книга-руководство по сборке корпусной мебели
Купить
$ 0.48

08.09.2003
0 продаж
Описание автомагнитолы SONY C9100 -схемы,чертежи,инструкции.
Купить
$ 0.2

03.03.2008
0 продаж
Чертежи стандартных узлов деталей
Купить
$ 0.4

18.06.2024
0 продаж
Чертежи и модели МЧ00.45.00.00 кондуктор в компасе
Купить
$ 8

Более 10 лет
0 продаж
Набор мебели для гостинной "Саммерсетский Аристократ"
Купить
$ 10.17

Более 10 лет
0 продаж
Набор мебели для гостинной «Многокультурный Краглорн»
Купить
$ 10.17
18.07.2025
0 продаж
Чертежи наладок технологических для детали вал-шестерня
Купить
$ 3.6
08.09.2025
0 продаж
Чертежи кран проходной, деталировка
Купить
$ 3.5
15.08.2025
0 продаж
МЧ.06.00.00 цилиндр гидравлический - чертежи
Купить
$ 2.6

11.07.2024
0 продаж
Набор роскошной мебели. Настоящие охотники знают толк в
Купить
$ 5.52
17.09.2025
0 продаж
Чертежи на изделие "Струбцина"
Купить
$ 5.6

Более 10 лет
0 продаж
Набор мебели для спальни «Многокультурный Краглорн»
Купить
$ 7.65

Более 10 лет
0 продаж
Набор мебели для спальни "Саммерсетский Аристократ"
Купить
$ 5.11

14.08.2024
0 продаж
Стакан. Чертежи детали, заготовки, приспособления
Купить
$ 3
08.09.2025
0 продаж
Чертежи клапан обратный деталирование
Купить
$ 3
25.09.2024
0 продаж
Чертежи петли для ворот в программе компас
Купить
$ 6
28.09.2024
0 продаж
Чертежи головки блока цилиндров двигателя в AutoCAD
Купить
$ 4.8

Более 10 лет
0 продаж
Набор мебели для ванной "Саммерсетский Аристократ"
Купить
$ 5.08
02.09.2025
0 продаж
Чертежи клапан предохранительный, деталировка в AutoCAD
Купить
$ 5

17.07.2024
0 продаж
Маховик ручного привода. Чертежи и спецификация
Купить
$ 2

28.07.2015
0 продаж
Башня Рожновского 26 м утепленная чертежи КМД
Купить
$ 1.46

13.01.2005
25 продаж
расстановка мебели
Купить
$ 0.3
03.06.2015
11 продаж
Чертежи - резьбовые соединения. Инженерная графика.
Купить
$ 0.44

03.11.2018
0 продаж
Чертежи станка из двигателя стиральной машины
Купить
$ 0.98