USSR SHOP »
Магазин » Задача С3 вариант 01, решебник Тарг С.М. 1982 г.
Купить Задача С3 вариант 01, решебник Тарг С.М. 1982 г.
Всего продаж: 0
✅ Методы оплаты: 











Описание товара:
Решение задачи С3 Вариант 01 из решебника по теоретической механике методички Тарга С.М. 1982 года.
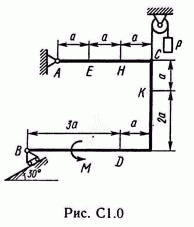
Сверьте условие к задаче С3 (стр. 20 в методичке Тарг С.М. 1982):
Однородный стержень весом Р=24 Н прикреплен шарнирно к невесомым ползунам 1 и 2 (рис. С3.0 — С3.9, табл. СЗ). Коэффициенты трения ползунов о направляющие, вдоль которых они могут скользить, равны соответственно f1 и f2. К ползунам приложены силы Q1 и Q2, показанные на рисунках. Механизм расположен в вертикальной плоскости.
Определить величину, указанную в таблице в строке «Найти», где обозначено: Q'1 (или Q'2) — наименьшее значение силы Q1 или Q2, при котором имеет место равновесие; Q"1 (или Q"2) - наибольшие значения тех же сил, при которых сохраняется равновесие; f1 (или f2) — наименьшее значение коэффициента трения, при котором сохраняется равновесие.
Cразу после оплаты Вы получите ссылку на zip архив с решением задачи Статика 3 вар. 00по теоретической механике из решебника Тарга С.М. 1982 года для заочников. Решение выполнено по методическим указаниям и контрольным заданиям для студентов-заочников строительных, тарнспортных, машиностроительных и приборостроительных специальностей ВУЗов. Решение оформлено в формате word/pdf/рукопись в формате jpg или gif.
Буду очень рад, если после успешной сдачи решения Вы вернетесь на сайт и оставите положительный отзыв. Это поможет сделать сервис лучше.
Заранее спасибо.
Сверьте условие к задаче С3 (стр. 20 в методичке Тарг С.М. 1982):
Однородный стержень весом Р=24 Н прикреплен шарнирно к невесомым ползунам 1 и 2 (рис. С3.0 — С3.9, табл. СЗ). Коэффициенты трения ползунов о направляющие, вдоль которых они могут скользить, равны соответственно f1 и f2. К ползунам приложены силы Q1 и Q2, показанные на рисунках. Механизм расположен в вертикальной плоскости.
Определить величину, указанную в таблице в строке «Найти», где обозначено: Q'1 (или Q'2) — наименьшее значение силы Q1 или Q2, при котором имеет место равновесие; Q"1 (или Q"2) - наибольшие значения тех же сил, при которых сохраняется равновесие; f1 (или f2) — наименьшее значение коэффициента трения, при котором сохраняется равновесие.
Cразу после оплаты Вы получите ссылку на zip архив с решением задачи Статика 3 вар. 00по теоретической механике из решебника Тарга С.М. 1982 года для заочников. Решение выполнено по методическим указаниям и контрольным заданиям для студентов-заочников строительных, тарнспортных, машиностроительных и приборостроительных специальностей ВУЗов. Решение оформлено в формате word/pdf/рукопись в формате jpg или gif.
Буду очень рад, если после успешной сдачи решения Вы вернетесь на сайт и оставите положительный отзыв. Это поможет сделать сервис лучше.
Заранее спасибо.