USSR SHOP »
Магазин » Задачи по БЖД 2-14
Купить Задачи по БЖД 2-14
Обновлено: 2025-10-25 16:29:09
$ 0.59
0 продаж
Всего продаж: 0
✅ Методы оплаты: 
Описание товара:
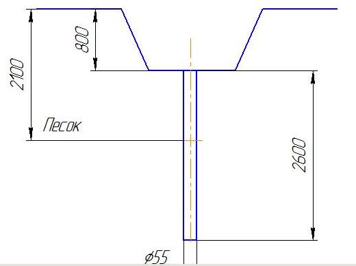
В мастерской дистанции пути требуется заземлить электрическое оборудование. Электрическая сеть имеет глухозаземленную нейтраль напряжением 380 В. Естественные заземлители отсутствуют.
Исходные данные для расчета принять в соответствии с табл. 7.
Глубина покрытия грунтом вертикальных электродов h = 0,8 см
Климатическая зона III
Длина вертикального электрода L = 2,6, м
Наружный диаметр электрода d = 0,055м
Ширина объединяющей стальной полосы, b = 0,06м
Род грунта на месте устройства заземлителя – песок
Решение задачи сопровождается пояснением и расшифровкой формул. После оплаты Вы сможете получить файл, сделанный в Word. Возможно, решение этой задачи в соответствии с вашими требованиями
Исходные данные для расчета принять в соответствии с табл. 7.
Глубина покрытия грунтом вертикальных электродов h = 0,8 см
Климатическая зона III
Длина вертикального электрода L = 2,6, м
Наружный диаметр электрода d = 0,055м
Ширина объединяющей стальной полосы, b = 0,06м
Род грунта на месте устройства заземлителя – песок
Решение задачи сопровождается пояснением и расшифровкой формул. После оплаты Вы сможете получить файл, сделанный в Word. Возможно, решение этой задачи в соответствии с вашими требованиями
Изображения:
Вас могут заинтересовать:
20.04.2016
43 продажи
Решение задачи 13.3.20 из сборника Кепе О.Э.
Купить
$ 0.74
20.04.2016
35 продаж
Решение задачи 15.3.2 из сборника Кепе О.Э.
Купить
$ 0.59
06.11.2015
28 продаж
Решение задачи С3 Вариант 16 Диевский В.А., Малышева ИА
Купить
$ 0.79
08.11.2016
27 продаж
Решение задачи 2.4.22 из сборника Кепе О.Е. 1989 года
Купить
$ 0.79
18.04.2016
17 продаж
Решение задачи 11.3.4 из сборника Кепе О.Э.
Купить
$ 0.98
09.11.2016
16 продаж
Решение задачи 2.6.14 из сборника Кепе О.Е. 1989 года
Купить
$ 0.79
25.11.2016
15 продаж
Решение задачи 14.3.5 из сборника Кепе О.Е. 1989 года
Купить
$ 0.63
15.04.2016
13 продаж
Решение задачи 6.1.10 из сборника Кепе О.Э.
Купить
$ 0.73
13.11.2015
13 продаж
Решение задачи К1 Вариант 19 Диевский В.А. Малышева ИА
Купить
$ 0.63
12.11.2016
12 продаж
Решение задачи 9.2.11 из сборника Кепе О.Е. 1989 года
Купить
$ 0.79
13.08.2007
12 продаж
Решение задачи В16Д10 из сборника Яблонского
Купить
$ 0.72
19.09.2007
12 продаж
Решение задачи В15С7 из сборника Яблонского
Купить
$ 0.72
10.11.2016
11 продаж
Решение задачи 5.7.8 из сборника Кепе О.Е. 1989 года
Купить
$ 0.79
25.11.2016
11 продаж
Решение задачи 14.3.3 из сборника Кепе О.Е. 1989 года
Купить
$ 0.63
21.04.2016
10 продаж
Решение задачи 17.3.37 из сборника Кепе О.Э.
Купить
$ 0.74
21.04.2016
13 продаж
Решение задачи 20.6.17 из сборника Кепе О.Э.
Купить
$ 0.73
26.11.2016
10 продаж
Решение задачи 15.2.7 из сборника Кепе О.Е. 1989 года
Купить
$ 0.63
26.11.2016
10 продаж
Решение задачи 14.6.3 из сборника Кепе О.Е. 1989 года
Купить
$ 0.63
30.11.2016
10 продаж
Решение задачи 16.1.13 из сборника Кепе О.Е. 1989 года
Купить
$ 0.79
09.11.2016
10 продаж
Решение задачи 3.3.7 из сборника Кепе О.Е. 1989 года
Купить
$ 0.63
29.06.2007
10 продаж
Решение задачи В1Д1 из сборника Яблонского
Купить
$ 0.72
11.11.2016
8 продаж
Решение задачи 8.2.11 из сборника Кепе О.Е. 1989 года
Купить
$ 0.63
11.11.2016
8 продаж
Решение задачи 8.4.6 из сборника Кепе О.Е. 1989 года
Купить
$ 0.63
21.01.2017
8 продаж
Решение задачи 13.5.8 из сборника Кепе О.Э.
Купить
$ 0.73
15.04.2016
6 продаж
Решение задачи 7.6.4 из сборника Кепе О.Э.
Купить
$ 0.74
23.11.2016
6 продаж
Решение задачи 13.2.6 из сборника Кепе О.Е. 1989 года
Купить
$ 0.79
13.08.2007
6 продаж
Решение задачи В18С3 из сборника Яблонского
Купить
$ 0.72
17.08.2007
6 продаж
Решение задачи В8Д4 из сборника Яблонского
Купить
$ 0.72
14.04.2016
5 продаж
Решение задачи 5.4.6 из сборника Кепе О.Э.
Купить
$ 0.73
17.07.2018
2 продажи
Задачи. Оценка рисков.
Купить
$ 4.88
12.06.2017
4 продажи
Решение задачи 11.1.7 из сборника Кепе О.Э.
Купить
$ 0.59
25.05.2017
4 продажи
Решение задачи 14.4.22 из сборника Кепе О.Э.
Купить
$ 0.74
24.11.2016
4 продажи
Решение задачи 13.5.16 из сборника Кепе О.Е. 1989 года
Купить
$ 0.63
26.11.2016
4 продажи
Решение задачи 14.4.20 из сборника Кепе О.Е. 1989 года
Купить
$ 0.79
17.10.2019
4 продажи
Решение задачи 14.2.8 из сборника Кепе О.Е. 1989 года
Купить
$ 0.79
02.04.2016
3 продажи
Решение задачи 16.3.15 из сборника Кепе О.Е. 1989 года
Купить
$ 0.98
10.11.2016
3 продажи
Решение задачи 5.5.10 из сборника Кепе О.Е. 1989 года
Купить
$ 0.79
20.10.2017
0 продаж
Задачи. Тесты. Экономика труда. Вариант №6.
Купить
$ 5.51
05.09.2018
2 продажи
Диевский В.А. - Решение задачи Д4 вариант 26 задание 2
Купить
$ 0.74
05.04.2012
2 продажи
Задачи по теории вероятности и мат.статистике
Купить
$ 6.15
05.06.2015
2 продажи
Решение задачи 120 сборника по химии Шиманович И.Е 2003
Купить
$ 0.31
05.06.2015
2 продажи
Решение задачи 163 сборника по химии Шиманович И.Е 2003
Купить
$ 0.31
12.11.2016
2 продажи
Решение задачи 9.5.4 из сборника Кепе О.Е. 1989 года
Купить
$ 0.63
11.11.2016
2 продажи
Решение задачи 8.1.4 из сборника Кепе О.Е. 1989 года
Купить
$ 0.63
31.05.2016
2 продажи
Решение задачи К4 В 05, решебник термех Тарг С.М. 1982
Купить
$ 0.79
31.08.2007
2 продажи
Решение задачи В25С4 из сборника Яблонского
Купить
$ 0.72
15.11.2016
2 продажи
Решение задачи 10.1.5 из сборника Кепе О.Е. 1989 года
Купить
$ 0.79
12.06.2015
1 продажа
Решение задачи 251 сборника по химии Шиманович И.Е 2003
Купить
$ 0.24
04.06.2015
1 продажа
Решение задачи 76 сборника по химии Шиманович И.Е 2003
Купить
$ 0.31
05.09.2017
0 продаж
Задачи по БЖД 2-9
Купить
$ 0.98