USSR SHOP »
Магазин » Расчет и проектирование фундаментов (Грунты)
Купить Расчет и проектирование фундаментов (Грунты)
Описание товара:
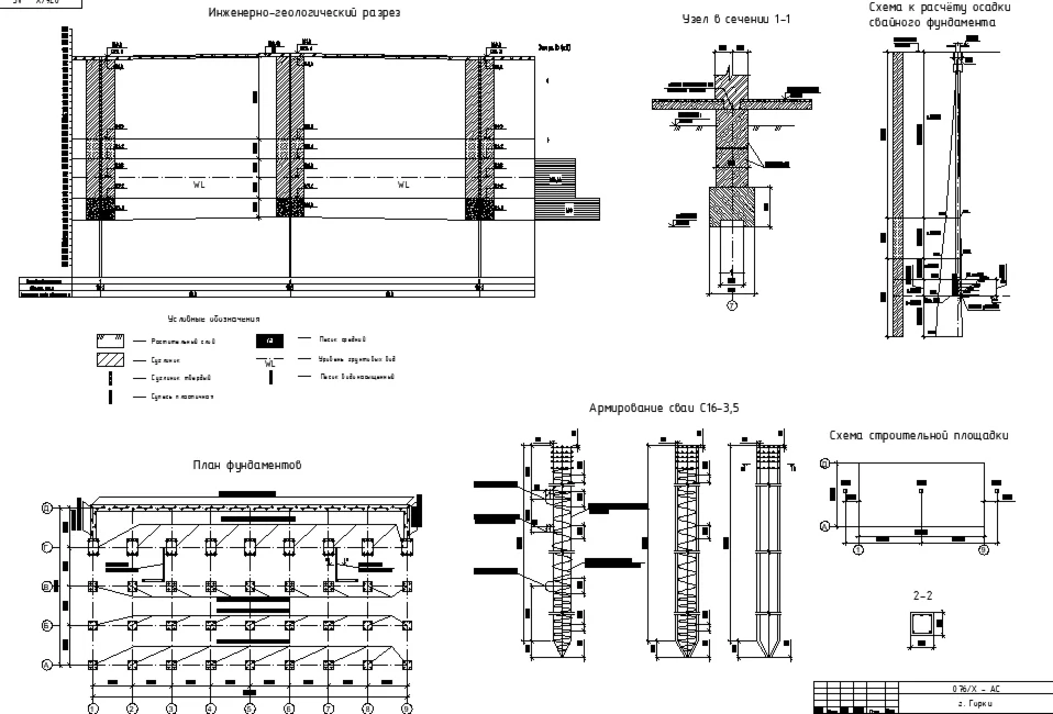
В данном курсовом проекте нужно рассчитать и запроектировать фундаменты под промышленное здание в городе Горки. Здание имеет следующие размеры в осях: длина – 48 м; ширина – 24 м.
Колонны для данного здания запроектированы сборными железобетонными сечением 300х300 мм, под них запроектированы фундаменты стаканного типа.
Расчетное сечение по заданию – 7-7, расчетные значения нагрузок для расчета по двум группам предельных состояний на уровне обреза фундамента:
Fvoi= 250,3 кH; Fvoii= 227,6 кH
Инженерно-геологические условия площадки определялись по трем пробуренным скважинам, одна - в центре плана здания и две - на расстоянии 5 м от крайних осей здания по продольной стороне.
Содержание:
Введение
1.Оценка инженерно-геологических условий площадки
2. Анализ грунтовых условий строительной площадки
2.1 Определение наименования пылевато-глинистого грунта и его физико-механических свойств
3. Анализ грунтовых условий строительной площадки
4. Проектирование глубинного уплотнения грунтов песчаными и грунтовыми сваями
4.1 Определение глубины заложения фундаментов
4.2 Определение размеров фундамента
4.3 Расчет площади уплотненного основания, определение расстояния между сваями и необходимого числа песчаных свай
5. Расчет свайных фундаментов
5.1 Расчет свай под ленточный фундамент
5.2 Определение количества свай и размещение их в ростверке
5.3 Проверка прочности основания куста свай
5.4 Определение осадки свайного фундамента
5.5 Выбор молота для погружения свай
5.6 Определение проектного отказа свай
6 Технико–экономическое сравнение вариантов фундаментов
7 Расчет тела сваи
7.1 Проверка прочности сваи при эксплуатационных нагрузках
7.2 Проверка прочности на усилия, возникающее при подъеме
8 Технология производства работ по устройству фундаментов
Список используемой литературы
------------------------------
Состав файла: RAR-архив, содержащий чертеж dwg + записка doc.
Колонны для данного здания запроектированы сборными железобетонными сечением 300х300 мм, под них запроектированы фундаменты стаканного типа.
Расчетное сечение по заданию – 7-7, расчетные значения нагрузок для расчета по двум группам предельных состояний на уровне обреза фундамента:
Fvoi= 250,3 кH; Fvoii= 227,6 кH
Инженерно-геологические условия площадки определялись по трем пробуренным скважинам, одна - в центре плана здания и две - на расстоянии 5 м от крайних осей здания по продольной стороне.
Содержание:
Введение
1.Оценка инженерно-геологических условий площадки
2. Анализ грунтовых условий строительной площадки
2.1 Определение наименования пылевато-глинистого грунта и его физико-механических свойств
3. Анализ грунтовых условий строительной площадки
4. Проектирование глубинного уплотнения грунтов песчаными и грунтовыми сваями
4.1 Определение глубины заложения фундаментов
4.2 Определение размеров фундамента
4.3 Расчет площади уплотненного основания, определение расстояния между сваями и необходимого числа песчаных свай
5. Расчет свайных фундаментов
5.1 Расчет свай под ленточный фундамент
5.2 Определение количества свай и размещение их в ростверке
5.3 Проверка прочности основания куста свай
5.4 Определение осадки свайного фундамента
5.5 Выбор молота для погружения свай
5.6 Определение проектного отказа свай
6 Технико–экономическое сравнение вариантов фундаментов
7 Расчет тела сваи
7.1 Проверка прочности сваи при эксплуатационных нагрузках
7.2 Проверка прочности на усилия, возникающее при подъеме
8 Технология производства работ по устройству фундаментов
Список используемой литературы
------------------------------
Состав файла: RAR-архив, содержащий чертеж dwg + записка doc.