USSR SHOP »
Магазин » Задачи по БЖД 2-29
Купить Задачи по БЖД 2-29
Обновлено: 2025-10-25 20:59:29
$ 0.74
0 продаж
Всего продаж: 0
✅ Методы оплаты: 
Описание товара:
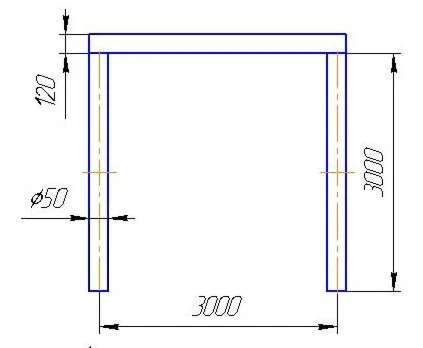
По исходным данным, представленным в таблице 5-12, рассчитать защитное заземление производственного оборудования, состоящее их вертикальных заземлителей (электродов) длиной 2,5-3 м и горизонтальной соединительной полосы толщиной 4 мм и шириной 0,12м. По результатам расчета представить схему защитного заземления. Тип грунта - Чернозем. Материал вертикальных заземлителей Стальная труба d = 50мм
Решение задачи сопровождается пояснением и расшифровкой формул. После оплаты Вы сможете получить файл, сделанный в Word. Возможно, решение этой задачи в соответствии с вашими требованиями
Решение задачи сопровождается пояснением и расшифровкой формул. После оплаты Вы сможете получить файл, сделанный в Word. Возможно, решение этой задачи в соответствии с вашими требованиями
Изображения:
Вас могут заинтересовать:
14.04.2016
50 продаж
Решение задачи 4.3.12 из сборника Кепе О.Э.
Купить
$ 0.59
21.04.2016
48 продаж
Решение задачи 18.3.11 из сборника Кепе О.Э.
Купить
$ 0.59
01.11.2015
40 продаж
Решение задачи С1 Вариант 19 Диевский ВА, Малышева И.А.
Купить
$ 0.79
16.11.2015
41 продажа
Решение задачи К2 Вариант 07 Диевский В.А. Малышева ИА
Купить
$ 0.79
19.11.2015
37 продаж
Решение задачи К3 Вариант 12 Диевский В.А. Малышева ИА
Купить
$ 0.63
14.04.2016
34 продажи
Решение задачи 2.3.14 из сборника Кепе О.Э.
Купить
$ 0.59
15.04.2016
33 продажи
Решение задачи 7.4.4 из сборника Кепе О.Э.
Купить
$ 0.73
20.04.2016
31 продажа
Решение задачи 14.2.4 из сборника Кепе О.Э.
Купить
$ 0.73
01.07.2021
28 продаж
Решение задачи 1.4.5 из сборника Кепе О.Э.
Купить
$ 0.59
14.04.2016
28 продаж
Решение задачи 2.4.19 из сборника Кепе О.Э.
Купить
$ 0.74
21.04.2016
26 продаж
Решение задачи 16.1.29 из сборника Кепе О.Э.
Купить
$ 0.59
08.06.2017
25 продаж
Решение задачи 17.1.18 из сборника Кепе О.Э.
Купить
$ 0.73
26.04.2017
21 продажа
Решение задачи 17.4.3 из сборника Кепе О.Э.
Купить
$ 0.74
09.10.2017
20 продаж
Решение задачи 16.2.7 из сборника Кепе О.Э.
Купить
$ 0.59
08.11.2016
20 продаж
Решение задачи 2.1.14 из сборника Кепе О.Е. 1989 года
Купить
$ 0.63
25.11.2016
20 продаж
Решение задачи 14.1.13 из сборника Кепе О.Е. 1989 года
Купить
$ 0.79
25.01.2017
23 продажи
Решение задачи К2 вариант 19 (К2-19) - Диевский В.А.
Купить
$ 0.73
30.11.2016
17 продаж
Решение задачи 16.2.17 из сборника Кепе О.Е. 1989 года
Купить
$ 0.79
23.04.2016
17 продаж
Решение задачи К3 Вариант 30 Диевский В.А. Малышева ИА
Купить
$ 0.79
09.01.2015
13 продаж
ЗАДАЧИ ПО ФИЗИКЕ С РЕШЕНИЕМ. ГЕОМЕТРИЧЕСКАЯ ОПТИКА.
Купить
$ 1.17
21.04.2016
12 продаж
Решение задачи 18.3.7 из сборника Кепе О.Э.
Купить
$ 0.59
19.05.2017
11 продаж
Решение задачи К1 вариант 20 (К1-20) - Диевский В.А.
Купить
$ 0.59
14.04.2016
11 продаж
Решение задачи 5.1.13 из сборника Кепе О.Э.
Купить
$ 0.59
09.11.2016
11 продаж
Решение задачи 4.2.9 из сборника Кепе О.Е. 1989 года
Купить
$ 0.63
20.04.2016
10 продаж
Решение задачи 14.2.3 из сборника Кепе О.Э.
Купить
$ 0.73
19.07.2016
9 продаж
Решение задачи Д5 Вариант 30 Диевский В.А. Малышева ИА
Купить
$ 1.03
15.11.2016
8 продаж
Решение задачи 11.2.8 из сборника Кепе О.Е. 1989 года
Купить
$ 0.79
11.09.2007
8 продаж
Решение задачи В5C7 из сборника Яблонского
Купить
$ 0.72
30.11.2016
7 продаж
Решение задачи 16.2.15 из сборника Кепе О.Е. 1989 года
Купить
$ 0.63
08.11.2016
6 продаж
Решение задачи 1.1.16 из сборника Кепе О.Е. 1989 года
Купить
$ 0.79
31.10.2016
6 продаж
Решение задачи 16.3.5 из сборника Кепе О.Е. 1989 года
Купить
$ 0.78
01.08.2007
6 продаж
Решение задачи В9Д1 из сборника Яблонского
Купить
$ 0.72
21.01.2017
5 продаж
Решение задачи Д1 вариант 29 (Д1-29) - Диевский В.А.
Купить
$ 0.73
25.10.2007
5 продаж
Решение задачи В9Д21 из сборника Яблонского
Купить
$ 3.68
31.10.2016
5 продаж
Решение задачи 16.1.26 из сборника Кепе О.Е. 1989 года
Купить
$ 0.63
15.11.2016
5 продаж
Решение задачи 9.8.7 из сборника Кепе О.Е. 1989 года
Купить
$ 0.79
20.01.2021
2 продажи
2 задачи МФСО.
Купить
$ 3.91
04.06.2020
4 продажи
Решение задачи 16.3.2 из сборника Кепе О.Э.
Купить
$ 0.59
22.12.2017
4 продажи
Диевский В.А. - Решение задачи Д7 вариант 10 задание 1
Купить
$ 0.73
10.11.2016
4 продажи
Решение задачи 4.3.1 из сборника Кепе О.Е. 1989 года
Купить
$ 0.63
15.11.2016
4 продажи
Решение задачи 11.1.3 из сборника Кепе О.Е. 1989 года
Купить
$ 0.79
25.11.2016
4 продажи
Решение задачи 14.1.6 из сборника Кепе О.Е. 1989 года
Купить
$ 0.79
10.01.2017
3 продажи
Решение задачи 6.3.8 из сборника Кепе О.Е. 1989 года
Купить
$ 0.98
23.11.2016
3 продажи
Решение задачи 13.1.10 из сборника Кепе О.Е. 1989 года
Купить
$ 0.79
04.07.2007
3 продажи
Решение задачи В11С1 из сборника Яблонского
Купить
$ 0.72
17.06.2015
2 продажи
Решение задачи 408 сборника по химии Шиманович И.Е 2003
Купить
$ 0.31
21.09.2007
1 продажа
Решение задачи В14К8 из сборника Яблонского
Купить
$ 1.57
04.06.2015
1 продажа
Решение задачи 41 сборника по химии Шиманович И.Е 2003
Купить
$ 0.31
05.06.2015
1 продажа
Решение задачи 86 сборника по химии Шиманович И.Е 2003
Купить
$ 0.31
20.09.2018
2 продажи
Решение задачи 17.4.17 из сборника Кепе О.Э.
Купить
$ 1.21